info
1 / 1

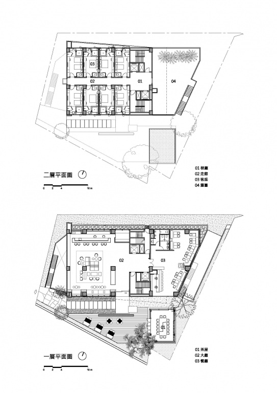
Hotelday Teacape

Location
Chiayi City, Taiwan
Built year
2014
Category
Architecture
Client
Hotelday Group
Floor area
4,096 m2
Hotel Teascape is located on an urban corner site, facing an intersection of a 90-meter-wide artery and a 10-meter-wide alley. It is a boutique hotel with a thematic experience, all features in the hotel are related to the themes -“Tea” and “Travel”. The idea of building form evolves from an image of stacked-up tea chests; every three floors are grouped as one chest, and the chests are shifted horizontally to produce terraces and cantilevered rooms. The shift in direction responds to the dynamic urban corner conditions, and the horizontally stripped balconies offer shadow and greenery to give the rooms more privacy.
 
The idea of lobby design comes from traditional “Tea Feast” – a ceremony of tea tasting. So the front desk and concierge are integrated into one linear log counter, with vertical display of tea canisters. The furnishing material and decorations of guestroom design also follows the same theme. Bathing and shower area are placed on the window side, which enhances the relations of body intimacy with urban landscape.
  • Hess Taichung Education Building

  • Hess Kindergarten Yuan-Lin School

  • Nalandabodhi Namkha Ösal

  • Administration Building, Taipower Aowanda Reservoir

  • Chiayi Art Museum

  • Dharma Drum Mountain Bow Yun Temple

  • On On Nature Restaurant

  • Hsin-Long Public Housing

  • Leader School Discovery Campus

  • Leader School Fengchia Campus

  • Formrum Vertical Villa & Reception Center

  • Aoyama Dian Dian Residence

  • Chang Hua County Art Museum

  • Hotelday Teacape

  • Taifong Golf Course Club Houses

  • Tunghai University Humanities Building

  • Giant Inc. Design Center & Flagship Store

  • Library & Administration Building, Jiun-Tou High School

  • Chuang Yung Ting Skin Clinic

  • Jeou Gang Hydraulic Headquarter Building

  • Shi-Hu Police Station

  • Wen-Der Police Station

  • Kitazawa International Office

  • Lintronix Co., Ltd

  • Hsin Yin Machinery Works Factory

  • Novatecwheels Headquarter Building

  • Fuko Inc., Hou-Li Factory

  • Synchrotron Radiation Center Addition

  • J Residence

  • House H

  • House L

  • Wang Residence

  • C Residence

  • Student Dormitory of Pin-Pei Senior High School

  • Defense Park – A Botanical Observatory

  • Southern Branch of the National Central Library& National Repository Library, Taiwan

  • Social Housing in Central Market, Taichung

  • New Sports Center of Tunghai University

  • Hotel Project, Chunghwa Post.

  • Taipei Performance Music Center Competition

  • Offshore Wind Power Maintenance Center Competition

  • Cheng Shin Rubber Inc. Xiamen Leisure Park Project

  • Tele-Communication Building, Yuan-Ze University (Competition)

  • 元利森活 JI宅

  • 寶象 大裕

  • 寶象 圓山

  • 雋 GEN by Matt Chen

  • SHO Restaurant

  • Librete Restaurant

  • 華固樂慕 CH宅

  • Drift Digital LTD office

  • 寶象鹽埕公設

  • MINIMAX

  • Pasture Yen Family

  • 富宇 L宅

  • JH 宅 renovation

  • 星野灶廚

  • Qin Mei Confinement Center

  • 石牌 CH宅

  • KUOCHEN Fugue

  • Qin Spa

  • HOUSE R

  • Hsin Yeh Housing

  • Jeou Gang Hydraulic Office

  • Hotel 53

  • KUOCHEN River Resident

  • KUOCHEN MRT

  • Wakayama Bokusui

  • Taipei Hoong Residence

  • Pregnancy care center, Yuan Lin

  • Hotel 52

  • Grass Mountain Chateau

  • All Your Family Happiness

  • Dafu Street Su house

  • ShoesBank

  • Peony Garden Japanese Restaurant

  • Bao Hua Jing Shuang Hallway

  • 捷安特 辦公室

  • 法鼓山 寶雲寺

  • 國城 鹽埕

  • Nankang Connectivity Platform

  • Green Corridor at the Heart of Tanzi

  • The Installation Art Project of the 81 Gas Explosion Memorial

  • Chung-Hsiao Elementary School Pedestrian Bridge

  • Principal Architect

    Ming-Wei Huang

  • Design Director

    Aber Lin

  • Partner & Head of Construction

    Hao-Min Hsu

  • Members

  • Honorable Mention, Taiwan Architecture Award, Admin. Building of Taipower Aowanda Reservoir

    2024

  • Good Design Award, Admin. Building of Taipower Aowanda Resevoir

    2024

  • iF Design Award, Tanzi Green Corridor

    2023

  • Jury Prize, Taiwan Architecture Award - Taifong Golf Course Clubhouses (collaborated with ÁLVARO SIZA+CARLOS CASTANHEIRA

    2021

  • Finalist, Taiwan Architecture Award - On On Nature Restaurant

    2021

  • First Prize, Taiwan Architecture Award - Chiayi Art Museum

    2021

  • Excellence Award, FIABCI-Taiwan Real Estate Excellence Awards - Chiayi Art Museum

    2021

  • First Prize, Competition of The Training Center of Taiwan Power Company

    2020

  • World Architecture Publication - Chiayi Art Museum

    2020

  • World Architecture Publication - On On Nature Restaurant

    2020

  • Award of Excellence, Taiwan Landscape Award - The Installation Art Project of the 81 Gas Explosion Memorial

    2018

  • Third Place, Southern Branch of the National Central Library & National Repository, Taiwan

    2018

  • Taiwan Outstanding Architects Award 2017

    2017

  • Chung-Hsiao Elementary School Pedestrian Bridge - Taichung City Space Design Award

    2016

  • Chang Hua County Art Museum - Taiwan Architecture Award shortlisted

    2016

  • Dharma Drum Mountain Bow-Yun Temple - Taiwan Interior Design Award

    2015

  • Jury Prize, Taiwan Interior Design Award - Pasture Yen Family

    2015

  • Chung-Hsiao Elementary School Pedestrian Bridge - FIABCI-Taiwan Real Estate Excellence Awards Golden Award

    2014

  • Chang Hua County Art Museum - FIABCI-Taiwan Real Estate Excellence Awards Golden Award

    2013

  • Wen-Der Police Station - 2010 Taiwan Architecture Award shortlisted

    2010

  • Wen-Der Police Station - ArchDaily Building of The Year 2010 Top 5

    2010

  • Wen-Der Police Station - AR Award for Emerging Architect Finalist

    2010

  • Jiun-tou Junior High School Library and Administration Center - WAACA 2008 shortlisted

    2008

  • China Architecture Media Award Young Architect Award Nomination

    2007

  • Tunghai University Humanities Building - Taiwan Architecture Award Honorable Mention

    2005

  • Tunghai University Humanities Building - Far Eastern Architectural Design Award 2004 Second Prize

    2004

Studiobase Architects, Design Group & Construction